Madre mia.
No se por donde empezar:
-Queda confirmado que los andenes son de 70 (aprox) metros como yo imaginaba y no de 60 como se ha reflejado en la bibliografia existente (manda huevos).
-El despacho de inspectores, y la distribución de esos garitos al pasar la estación a tener tres andenes, una delicia.
-Conocia esa curiosa diferencia que se observa en la longitud de los andenes de Liceo. Sigo sin ver el motivo pero por lo menos queda clara la distribución de los vestíbulos. Quizás aclararia algo ver si esa diferencia tiene correspondencia en el piñón lado Lesseps.
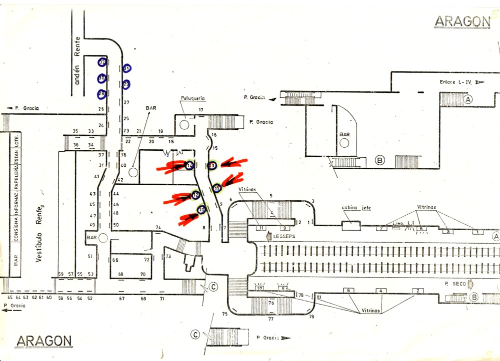
-El detalle de la escalera mecánica de Aragón es fabuloso. Sin embargo el plano es algo tardío y pueden observarse las nuevas galerias de enlace con él casi recién estrenado vestíbulo del apeadero de Paseo de Gracia de Renfe. Descartando pasillos puede uno hacerse a la idea de como era aquello en el año 50. Y para rematarlo tenemos dibujado en trazo discontinuo la situación del piñón lado Lesseps que, usado como referencia, ayuda a posicionar todo el conjunto.
-El plano de Jaime I no es otro que la sección de la galeria que enlaza las dos naves de la estación por debajo de las vias. Una maravilla, y de paso tenemos la sección de los tuneles de la Reforma, es decir, Via Laietana.
El ancho de la nave, en este caso, es aplicable a Aragón solamente, afirmación matizable:
La bóveda de Aragón es de 14 metros de luz, igual que Diagonal y que Cataluña. La única diferencia es que la contrabóveda de Aragón se incia por encima del nivel del andén debido a la profundidad a la que está la estación. En Diagonal y en Cataluña la contrabóveda se inicia por debajo del andén, con lo cual los muros se entregan a éste en angulo recto. Por lo que respecta al resto de dimensiones básicas esas tres estaciones van de la mano. No ocurre lo mismo con el resto de estaciones, Fontana y Lesseps tienen bóveda de menor luz, y Urquinaona lo mismo. Liceo es caso aparte, Fernando más todavia. Jaime I lo mismo, y Correos otro tanto.
Mil gracias Evody, hasta pronto.
BCN Término.
Alex Reyes







